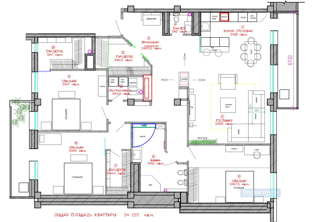
Дизайн однокомнатной квартиры 34 кв. м.
Квартира 34 кв. м. — дизайн однокомнатной квартиры, с идеальной планировкой (110 фото)
Оформить свою квартиру с учётом аспектов комфорта и эстетики стремится каждый. Насмотревшись телевизионных передач о ремонте, многие думают, что это элементарно. Достаточно лишь «ухватиться» за понравившуюся идею, перенести её на свои квадратные метры. На деле всё обстоит гораздо сложнее. Действовать надо с учётом индивидуальных составляющих помещения.
Особенности планировки, расположения, другие нюансы площади могут стать решающими. Например, выполнить удачный ремонт квартиры 34 кв. м. без участия профессионального дизайнера сложно. Чтобы не совершать распространённых ошибок необходимо учитывать советы специалистов.
Оглавление статьи:
Составление дизайн-проекта — основа ремонтных работ
Обладание компактной площадью — повод прибегнуть к помощи детального планирования. Именно составление дизайн-проекта способно удачно вместить всё необходимое.
Составление подробного плана поможет учесть каждый сантиметр пространства. Это способствует экономии драгоценных метров: правильно выполненная отделка, расстановка мебели может оказать решающей. Возможно, понадобится перепланировка или удастся ограничиться визуальной коррекцией.
Выполнить проект можно самостоятельно, но для дилетанта это сложно выполнимая задача. Лучше, если делом займётся профессиональный дизайнер-проектировщик. Он оценит имеющееся пространство, учтёт существующие пожелания, предложит разные варианты дизайна квартиры 34 кв. м.
Конечный результат ремонта зависит не только от мастерства рабочих, но и правильности поставленных перед ними задач. Без чёткого представления итоговой картинки это сделать невозможно. Поэтому, прежде чем приступать к реализации задуманного, придётся серьёзно продумать возможную планировку квартиры.
Важна практичная функциональность и визуальная стилистика. В итоге помещение обязано быть комфортным и привлекать внимание красотой.
Эффективные варианты планировки
Информация об обладании 34 кв. м. не даёт ясного представления об имеющейся планировке. Предполагаются различные варианты:
- студия;
- однокомнатная квартира;
- наличие 2 комнат.
Других типажей с таким метражом, как правило, не бывает. Исходя из имеющейся ситуации производят работу с окружающим пространством.
Квартира-студия с такой квадратурой — идеальный вариант. Отсутствие лишних стен подарит простор. Отделка в светлых тонах, минимальное присутствие мебели ещё больше «раздвинут» действительность.
Такой вариант планировки идеален для одиноких людей, молодой бездетной пары. Оценят студийный тип динамичные, смелые, обладающие нестандартным мышлением.
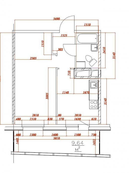
Однокомнатная квартира 34 кв. м. может обладать различными планировками.
В новостройках чаще встречаются квартиры с примерно равнозначными по площади помещениями. В этом случае компактную комнату можно превратить в стандартную спальню, а достаточно просторная кухня может выполнять не только свои основные функции, но и станет мини гостиной.
Двухкомнатная квартира 34 кв. м. встречается редко. Такой вариант типичен для «малосемеек» советской постройки. Крошечные комнатки и кухня позволяют обеспечить минимальные потребности в комфорте. Красивый дизайн в этом случае отходит на второй план.
Главное, обеспечить необходимую функциональность. Малогабаритные «двушки» — отличный вариант, чтобы разместить семью с детьми (при отсутствии возможности улучшить жилищные условия).
Методы оптимизации используемого пространства
Обладатели шикарных апартаментов не стеснены в реализации желаний по организации окружающего пространства. Владельцы небольших по площади квартир не всегда могут позволить себе тот дизайн, который хочется. Для решения этой задачи существуют некоторые хитрости:
Перепланировка площади. Чаще всего к ней прибегают в тех случаях, когда изначально квартира имеет нестандартные решения: наличие ниш, маленькой кухни, неудобного коридора. Часто для расширения пространства используют возможность присоединения балкона к общей полезной площади.
Грамотная работа с цветом и светом. Маленькие комнаты целесообразно окрашивать в светлые тона. Яркие пятна добавляют в качестве акцентов. Стоит уделить особое внимание распределению света. Крупные окна без существенного затенения, достаточное количество искусственных источников — отличный выбор.
Зонирование помещения. Обычно на зоны разбивают просторные комнаты. Это позволяет выделить тематические объекты, акцентировать внимание. Достигают этого с помощью использования разных отделочных материалов, градации цветовой гаммы, мебели, специальных элементов (перегородок, ширм).
Использование трансформируемых, мобильных составляющих интерьера. При наличии небольшой площади следует задуматься об отказе от дверей или замене стандартных распашных на раздвижные модели.
Хорошей идеей для маленькой квартиры станет использование компактной или трансформируемой мебели. Выдвижные, раскладные или откидные кровать, стол, стулья — то, что надо.
Максимальное использование полезного пространства. Необходимо отказаться от нерациональной расстановки мебели. По возможности задействовать «мёртвые» зоны (подоконники, углы). Правильно организовать систему хранения (гардеробная, вместительный шкаф-купе, антресоли).
Каждый из перечисленных методов оптимизации используется отдельно или в совокупности с другими.
Применение того или иного варианта рассматривается индивидуально. В каждом конкретном случае возможно внесение корректив.
Интерьер квартиры 34 м2 не такая уж сложная задача. Важно разобраться в индивидуальных особенностях помещения, потребностях конкретной семьи. Сделать обстановку удобной и красивой по силам каждому.
Фото квартир 34 кв. м
Вам понравилась статья?
Стильный дизайн квартиры 34 кв м (45 фото): Приемы и методы
Содержание
- Планирование работ
- Размещение жильцов
- Приемы по оптимизации пространства
- Мебель в небольшую квартиру
- Стилистика интерьера
- Практические советы
- Современный дизайн квартиры/студии 34 кв (2 видео)
- Как можно оформить дизайн квартиры 34 кв (45 фото)
Интерес к оформлению своего жилья неуклонно растет.
Способствуют этому многочисленные телевизионные проекты и тематические ресурсы в интернете. Однако на практике успешно реализовать интересные идеи и задумки не всегда получается. Виной тому становятся часто прямое копирование без учета специфики и конфигурации помещения. Правильно сделать дизайн квартиры 34 кв м без знаний и опыта сложно. Учитываем это и пользуемся советами.
Планирование работ
Конечный результат напрямую зависит от качества проекта. Поэтому отнестись со всей ответственность к этому вопросу просто необходимо. Прежде чем начитать реализацию идеи по обустройству однокомнатной квартиры нужно четко поставить задачу со следующими исходными данными.
Функциональность. Речь идет о наборе тех или иных опций, необходимых для комфорта и специальных задач. Например, такие небольшие квартиры приобретаются для организации студий или офисов. Если владелец однокомнатной квартиры имеет увлечения, хобби или личные пожелания, нужно их учитывать при проектировании.
Стилистика. Одна и та же задача может решаться разными способами. Какой стиль выбрать при отделке однокомнатной квартиры, а главное как его реализовать на практике решается индивидуально. Видео и фото готовых проектов не могут быть просто скопированы, хотя часто идеи переосмысливаются и доводятся до логического завершения, учитывая конкретную площадь.
Размещение жильцов
Квартира площадью 34 кв. м предполагает два варианта. Однокомнатной или двухкомнатной. В первом случае проживание семьи с несколькими детьми проблематично и скорее это жилье подойдет для бездетной или молодой пары, студентов, пожилых и одиноких людей. Придерживаться следует следующих правил:
- Обеспечение детей местом для занятий, учебы и развития. Хорошим примером служит фото с техническими решениями по обустройству уголка для ребенка.
- Всем обитателям квартиры 34 кв. м нужно обеспечить полноценный отдых. На практике реализация задачи показана на фото, где применяются трансформируемые и убирающиеся кровати и диваны.

- Соблюдение санитарных и гигиенических правил. Оптимально решить эту проблему поможет опыт и оригинальные приемы организации кухонных и туалетных помещений. Интересные идеи для однокомнатной квартиры на фото, предлагают оригинальную форму предметов интерьера и их размещение на кухнях и в ванных комнатах.
Приемы по оптимизации пространства
Владельцы шикарных апартаментов площадью в сотни квадратных метров ограничены при решении дизайнерских задач исключительно пределом творческой фантазии и финансовыми возможностями. Тем же, кто имеет однокомнатную квартиру, приходится отказываться от многих понравившихся идей в силу невозможности их реального воплощения. Однако, успешные дизайнеры доказывают, что реализовать некоторые задумки можно. На размещенных фото видно, что с задачей они справились. Для этого нужно пользоваться следующими приемами:
- Капитальная перепланировка. Сегодня для организации единого жилого пространства, так называемой студии, операция необходимая.

- Трансформируемые и мобильные элементы интерьера. Для однокомнатной квартиры отлично подойдут раздвижные перегородки, которые выполняют функцию стены. 34 кв. м достаточная площадь для временного отделения часть площади. Удачной идеей может быть использование перегородок на колесиках, которые перемещаются в любое нужное место, штор.
- Визуальное зонирование. Небольшая полезная площадь квартиры 34 кв. м может быть разбита на тематические участки с помощью подиумов, элементов декора на стенах и потолках. Одним из способов визуального разделения однокомнатной квартиры является работа со светом. Точечные и направленные светильники при включении кардинально меняют пространство комнаты. Достаточно посмотреть фото одной и той же площади при работающих и отключенных источниках света.
- Цветовое решение. Предпочтение следует отдавать светлым тонам. С полосами и размером рисунка следует поэкспериментировать или довериться опыту профессионала.
Тут есть нюансы, которые даже не знают некоторые опытные дизайнеры.
Удачные решения, продемонстрированные на фото, подойдут в имеющийся интерьер только при условии полной идентичности габаритов и конфигурации комнаты. При проектировании специалист учитывает и пропорции помещения, и цвет, и фактуру. Баланс характеристик каждой составляющей и дают в сумме желаемый эффект.
Совет! Следует избегать тяжелых штор. Простая драпировка и полупрозрачные ткани наполнят светом помещение и интерьер примет более изысканный и легкий вид.
Мебель в небольшую квартиру
Выбор предметов интерьера и аксессуаров ключевая задача. При ошибке даже идеальная отделка маленькой квартиры потеряет все преимущества, если неправильно будет выбрана мебель. Критерии, которым стоит следовать, чтобы результат получился удовлетворительный:
- Габариты. При покупке стоит уточнить размеры отдельных предметов и сравнить их с замерами комнаты.
Тот же принцип следует применить при заказах через интернет. Стол, шкаф или кровать могут отлично смотреться на снимках, но впишутся ли они в ограниченной пространство маленькой квартиры 34 кв. м, это вопрос.
- Функциональность. Дизайн небольшого жилья можно будет считать удачным, если при оптимизации объема будут сохранены базовые опции. Просчитывается предполагаемый для хранения объем вещей, хозяйственных и бытовых приборов, устройств. Прокладываются маршруты коммуникаций, и определяется необходимый минимум предметов, необходимых для уюта и выполнения домашних дел. Все лишнее и необязательное исключается, поскольку для маленькой квартиры это может быть критическим перебором, а наличие некоторых предметов и элементов интерьера будет только раздражать владельцев.
- Сочетание со стилистикой отделки. Строгих критериев сегодня нет. Часто дизайн маленькой квартиры делается в стиле фьюжн, где характерно смешение предметов различных стилей.
Важно не переборщить при сочетании цветов, фактур и формы предметов. Иначе может получиться неприглядная картина, а хозяин жилья заработает не лестную репутацию. Да и самим находиться в помещение, где хаотично расставлены аксессуары и предметы, абсолютно не подходящие друг к другу, будет не очень приятно.
Совет! Современная фурнитура позволяет существенно трансформировать предметы мебели. Диваны и столы могут при раскрытии увеличивать полезную площадь в три раза, а в некоторых случаях и больше. Уточняйте характеристики у менеджера или консультанта.
Стилистика интерьера
Подход к реализации идеи может быть различным и зависит в первую очередь от желания владельца квартиры 34 кв. м. Если молодежь предпочитает хайтек или модный ныне лофт, то состоявшиеся люди хотят иметь достойное место для отдыха и выбирают классику. Популярен сегодня скандинавский стиль в маленькой квартире. Наполненный светом и минимумом предметов, но крайне функциональный интерьер имеет широкий круг почитателей.
Неплохо в небольшом объеме смотрится и этнический стиль. Привезенные из дальних поездок предметы быта и культуры удачно впишутся в соответствующий интерьер. Особенно интересно смотрятся квартиры выполнение в стилистике восточных и африканских народов.
Практические советы
При разработке проекта обычно предлагается несколько вариантов, которые могут значительно отличаться друг от друга. Какой дизайн выбрать в данном случае, сложный вопрос. Изображения на фото не всегда передают истинный эффект, поэтому при возможности лучше воочию увидеть несколько вариантов отделки уже законченных объектов. Очень часто после просмотра, например, пропадают сомнения по поводу квартиры, выполненной с техники студии. Воздушность и изящество единого жилого пространства оказываются решающим фактором при окончательном решении.
Одной из самых сложных задач является размещение шкафов для вещей и одежды. Успешно решить ее можно следующими способами:
- Использовать ниши и другие конструктивные особенности помещения.
Приобрести или заказать шкаф-купе. Разнообразный дизайн и конструкции этого предмета мебели крайне популярны сегодня, поскольку нет необходимости оставлять мертвые зоны для открывания традиционных дверей.
- Разделить места хранения на отдельных участках квартиры. На фото можно вообще не увидеть традиционных шкафов. Их функцию могут выполнять выделенные для этих целей небольшие по объему отделения на лоджии, в прихожей, коридоре, под спальным местом. Такой дизайн можно признать очень удачным.
- Оригинальные шкафы. Отличает их от стандартных изделий небольшая глубина. Добиваются это применением специальной фурнитуры. Обычные вешалки для одежды, например, расположены не по средней оси шкафа, а на крючках, зафиксированных на задней стенке. Еще интереснее смотрится раскладная и раздвижная фурнитура. Полноценное место для хранения вещей может быть сделано глубиной 20-30 см, что для небольшой квартиры в 34 кв. м будет явным плюсом.
Часто дизайн однокомнатной квартиры с жилой площадью 34 кв.
м предполагает использование убирающихся в стены или шкафы функциональных предметов и деталей интерьера: столы, домашний кинотеатр, кровати и прочее.
Для многих трудной задачей становится цветовое наполнение пространства. Сегодня на фото дизайнерских работ предлагается такое разнообразие, что у неподготовленного заказчика может отказать чувство меры и вкуса. Многие проекты эксклюзивны и имеют индивидуального пользователя, поэтому стоит отказаться от копирования и привлечь к работе специалиста.
Совет! Избежать грубых ошибок при сочетании цветов поможет круг Иттена. Разработанная им схема стала классическим образцом для гармоничной колористики. Дизайн любого проекта с помощью цветового круга Иттена стал классическим способом для определения идеальных соотношений цветов.
Современный дизайн квартиры/студии 34 кв (2 видео)
Как можно оформить дизайн квартиры 34 кв (45 фото)
34 Square Meter Cozy Attic Studio Apartment
Search
- HOME INTERIORS
- ROOMS
February 5, 2023
January 30, 2023
January 17, 2023
October 14, 2021
23 февраля, 2021
6 апреля, 2020
14 сентября 2022 г.

25 августа, 2021
202020
Февраль 28, 2023
February 21, 2023
February 16, 2023
- KITCHEN
March 8, 2023
February 19, 2023
February 14, 2023
- BATHROOM
7 марта 2023 г.
3 марта 2023 г.
26 февраля, 2023
- Покупки
1 февраля 2021
сентября 28, 2020
Сентябрь 5, 2020 920
- Небольшая квартира
19 сентября, 2022
24 июля 2022 г.
26 апреля, 2022
- 1 Ноябрьский
Home Interiors Scandinavinavinavin Areses
- 1011010101010110110110110110110110101011010101101011011011010110110110110110110110110110110110110110110101109.

Эта квартира открытой планировки отличается приятной воздушной атмосферой. Выкрашенные в белый цвет стены, деревянные полы и простая модернистская мебель придают этому жилому пространству авангардный вид с привлекательностью 60-х годов. Мебель легкая, простая, но уникальная. Круглый стол и стулья ненавязчиво стоят посреди комнаты. Большие окна пропускают естественный свет, а простой стол для хранения, листва и открытые деревянные балки создают идеальный контраст с простым декором.
Эта квартира полностью соответствует принципам фэн-шуй. Среда очень хорошо сбалансирована. Движение не прерывается мебелью или другими предметами, а планировка открыта и приветлива.
Пространство также используется с умом. Например, главная комната делит зону кухни и гостиной. Акцентные элементы, такие как ковер с ворсистым ворсом, стол из стекловолокна и место для хранения с отделкой из шеллака, добавляют ровное мерцание, сохраняя пространство широким и привлекательным.
Просторная ванная комната с душем, раковиной и полотенцесушителем хорошо оборудована стиральной машиной и другими удобствами. Дизайн компактный и достаточно просторный, чтобы не казаться переполненным. Аккуратно уложенная серая плитка украшает пол с бело-серой плиткой на стене. Комбинация дополняет друг друга и позволяет сохранить ощущение простора в этом районе. Зеркало над раковиной имеет встроенную подсветку, которая соответствует дизайну всего дома.
В прихожей большая удобная гардеробная. Пространство для хранения идеально спроектировано для пассажиров, ведущих простой, но увлекательный образ жизни. Множество полок, длинная вешалка для одежды и мягкий акцентный коврик делают шкаф сам по себе почти уютной гостиной! Кроме того, огромное круглое зеркало, висящее на стене прихожей, увеличивает пространство. В то время как черный стул и маленький стол добавляют нужное количество контраста и делают это место интригующим и удобным.
Эта элегантная квартира предназначена для одинокого человека или молодой пары, которые готовы взять жизнь в свои руки и исследовать все свои возможности.
Планировка способствует легкой жизни без суеты. Декор разработан с использованием нескольких элементов, которые резонируют с тихой красотой и художественным вкусом. Винтовая лестница, ведущая в квартиру, является показателем простоты, которую можно ожидать, оказавшись внутри квартиры. В целом, гостиная может удовлетворить самый разный вкус. Декор легко изменить. Его можно сделать более индивидуальным, просто добавив еще один цвет, акцентный ковер или произведение искусства. Это прекрасное жилое пространство, которое каждый может назвать домом.
Виа Стадшем
Мелина Дивани является владельцем и создателем Decoholic.org. Дизайн интерьера — ее бесконечная страсть без остановки. Подпишитесь на Мелину в Instagram
У Эрин Хиемстра из Apartment 34 было 20 минут, чтобы сделать предложение по этому дому — вот как она превратила его в идеальный прибрежный шикарный пляжный дом на возвышенности
Привет, читатели EHD! Меня зовут Эрин, я основатель дизайнерского блога Apartment 34, и я очень рада быть здесь сегодня, чтобы представить то, что оказалось моим пандемическим проектом.
Я знаю, как сильно вы все любите сумасшедшую историю ремонта до и после, и мне действительно не терпится услышать, что вы все думаете об этом, потому что (осторожно, спойлер!) сам! Но подробнее об этом чуть позже. А пока давайте погрузимся в эти американские горки саги о ремонте.
Когда в середине 2020 года свирепствовала пандемия, мы с мужем наткнулись на объявление в идиллическом месте на северо-западе Тихого океана, всего в часе езды от Сиэтла. Этот красивый маленький уголок мира находится рядом с местом, где я вырос, проводя лето, катаясь на пароме и играя на пляже со своей семьей, которая все еще живет в этом районе. Поскольку будущее выглядело таким неопределенным, мы искали место, чтобы быть ближе к нашим ближайшим родственникам, поэтому мы нырнули с головой, думая, что проведем быструю трехмесячную подготовку, чтобы переждать остаток блокировки с нашими ближайшими и близкими. дорогая. У плохого джуджу 2020 года были другие планы.
Как раз когда мы собирались начать, собственность сильно пострадала от воды из-за неисправного подключения посудомоечной машины.
Полы и стены в кухне и гостиной, а также комнаты в подвальном этаже сильно пострадали. Внезапно этот проект принял совершенно новый оборот. У нас оставался единственный вариант — сделать гораздо большую работу с кишечником. Излишне говорить, что наше трехмесячное «приведение в порядок» было разорвано настежь. К счастью, это не первое мое родео. Я потратил более пяти лет на ремонт и реставрацию исторического викторианского здания в Сан-Франциско, поэтому я чувствовал себя достаточно подготовленным к такому повороту событий. Однако впереди, безусловно, были еще неизведанные испытания. Я подумал, что вас заинтересуют некоторые другие препятствия, связанные с Covid, с которыми столкнулся этот проект:
- У нас было всего 20 минут, чтобы пройтись по отелю, прежде чем решить, делать предложение или нет.
- Мне удалось увидеть его еще раз в течение 45 минут — все еще полностью занятым предыдущим владельцем — до начала проектирования
- Весь проект был разработан и управлялся удаленно, так как я живу в Сан-Франциско
- Я был на сайте только два раза до завершения
- Постоянные проблемы с цепочкой поставок перенесены на 12-20 недель дольше, чем ожидалось
Пока мой подрядчик и его команда начали демонстрацию полов, поврежденных водой, я укрывался на месте, руководил детским садом Zoom и выбирал отделку и мебель, уложенные на диване в мягких штанах с вином в руке.
Так странно думать, что я сделал все эти дизайнерские решения уже более полутора лет назад. Ой, искривление времени Covid — это путешествие.
Короче, более 14 месяцев спустя я наконец-то могу заявить, что проект завершен! Давайте поедем по ухабистой дороге, чтобы добраться сюда.
Гостиная
Белая скамейка
Гостиная До
В то время как (то, что мы теперь с любовью называем Коттеджем Худ-Канал) имеет поистине потрясающее расположение — идеальное место, чтобы расслабиться и насладиться красивыми окрестностями — сам дом предложил мало вдохновения для дизайна. Это типичный американский загородный дом конца 1990-х годов, который, к счастью, оказался в маленьком кусочке рая.
Моя миссия: помочь интерьеру этого дома соответствовать великолепию, которым вы наслаждаетесь из его окон.
Круглый стул | Торшер | Искусство | Ковер (больше не доступен) | Журнальный столик (больше не доступен) | Диван (больше не поставляется)
Настольная лампа | Сервант
Реконструкция этого дома была бесконечным балансированием, поскольку мы не были на рынке, чтобы вносить какие-либо серьезные архитектурные изменения — как бы мне этого ни хотелось.
Вместо этого мне нужно было понять, как работать с существующими пространствами, но полностью изменить атмосферу. Поскольку этот дом примыкает к прекрасным пляжам Пьюджет-Саунд, имело смысл определить его как пляжный домик, но я не хотел впадать в это клише. Вместо этого я хотел показать, как вы можете привнести свой личный стиль и эстетику дизайна в любой тип пространства, а не чувствовать себя вынужденным в скучной теме дизайна. Я намеревался достичь того, что я называю Elevated Coastal Chic. Я хотел отточить скандинавское влияние дизайна, возможно, с оттенком прибрежного очарования. Я не могу дождаться, чтобы услышать, если вы думаете, что я преуспел.
Гостиная коттеджа «Канал Худ» предназначена для отдыха – как бы вы ни предпочитали это делать. Сидя у костра, наблюдая закат за Олимпийскими горами, уткнувшись носом в хорошую книгу или наслаждаясь бокалом любимого вина. Я хотел, чтобы эта комната окутала тебя чувством безмятежности. Я воспользовался одним из моих любимых ресурсов, чтобы добиться внешнего вида — диван, ковер, журнальный столик и буфет — все от Lulu & Georgia.
Вы всегда можете отправиться туда и найти драгоценный камень.
Мне также всегда нравились действительно хорошие стулья — я рассматриваю их как украшения для комнаты, а кресло Circle от Eternity Modern — именно то, что нужно для этого пространства. На самом деле это был первый предмет мебели, который я выбрал для всей комнаты — остальная часть моего дизайна действительно была построена вокруг стула Circle.
Аксессуары в гостиной намеренно сделаны однотонными и сведены к минимуму. Радость пребывания в отпуске заключается в том, чтобы забыть о вещах — в прямом или переносном смысле — которые втискиваются в нашу жизнь, поэтому я действительно работал над тем, чтобы этот вид был как можно более минималистичным, но не слишком современным. Стопки моих любимых дизайнерских фолиантов и отборные декоративные элементы от друзей, местных магазинов, таких как Shop Coco Kelley и Casa Patina, или ремесленников, с которыми я регулярно работаю, помогают пространству чувствовать себя кураторским, но в то же время личным.
Еще несколько деталей, на которые следует обратить внимание: вся комната (и, на самом деле, весь дом) окрашена в цвет Simply White Бенджамина Мура на стенах, потолке и отделке в знак уважения к ярко-белым скандинавским домам. Это также противоядие от сиэтлского серого — это вещь. Идея широких дощатых полов в доме также возникла из моей любви к скандинавскому дизайну. Я был очень доволен теплым оттенком дерева (хотя это виниловые полы, сссс!). Напольное покрытие действительно создает пространство и помогает обыграть другие элементы из натурального дерева, разбросанные по всей комнате. Каминная полка была быстрым решением, чтобы скрыть старую уродливую плитку. Я просто попросил своего подрядчика построить коробку, которую затем покрасил прекрасным оттенком от Color Atelier, чтобы придать ей немного больше глубины и текстуры. Очаг — это остатки кухонной столешницы! Любовь к маленьким победам в дизайне своими руками.
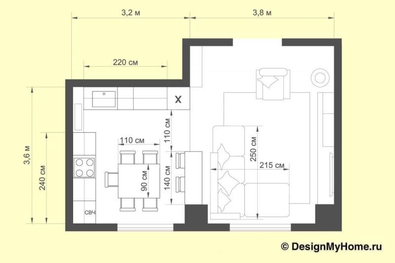
А теперь давайте обратим внимание на кухню, хорошо? Если вы стоите в гостиной и поворачиваетесь на 180 градусов, вы смотрите прямо на кухню дома, а это полные 180 градусов от того места, где началось пространство!
Кухня до
У меня есть большая одержимость кухней — я имею в виду, не все ли — и я действительно хотел, чтобы моя мечта воплотилась в жизнь в этом пространстве.
Кухонная зона была единственным местом, где я снес стены во время ремонта. Если вы внимательно посмотрите на предыдущие фотографии, то заметите, что оригинальная кухня была намного меньше. На самом деле в правом углу комнаты было закрытое пространство размером 6 на 6 футов, в котором размещалась прачечная, раковина и несколько случайных кладовых. Но он занял серьезную недвижимость, а также разрушил единственную интересную архитектурную деталь всего дома — сводчатый потолок, идущий по всей длине основного жилого помещения. Как только я получил подтверждение, что эти стены не были несущими, они рухнули, открыв полностью смежные гостиную, столовую и кухню. (Прачечная легко переместилась в соседний гараж. Поставила бы я белье в гараж в основном семейном доме? Может быть, нет. двое там).
Краснодеревщик | Столешницы | Лоток | подвесной светильник | Художественная печать | Плавающая полка | Peg Rail
Открытие кухни изменило правила игры и позволило мне воплотить в жизнь мою мечту – включить кухню Reform в проект! Я годами фанател от Реформы.
Это кухонная компания из Дании, которая начала делать нестандартные фасады для кухонных ящиков Ikea. Мне нравится их возвышенная, но минималистичная эстетика. За последние пару лет они совершили прыжок через океан, открыв выставочные залы в Нью-Йорке и Лос-Анджелесе. Я давно поражен линейкой шкафов Reform Frame, разработанной Note Design Studio — еще одним любимым скандинавским дизайнерским домом. Это кухонный шкаф, который вы видите здесь. Эта коллекция представляет собой набор полностью сборных кухонных шкафов собственной разработки Reform, и они необыкновенны. Качество божественное, и мой подрядчик не мог перестать восхищаться тем, как легко их собрать и установить.
Направляющая с колышками
Я хотел, чтобы эта кухня была сделана из предметов мебели, поэтому здесь нет верха, а задний ряд фактически парит над стеной с обоих концов. Однако имеется достаточно места для хранения, так как все задние шкафы на самом деле представляют собой двойные ящики, а весь остров обернут дополнительными местами для хранения.
Индукционная плита находится на вершине острова, а духовка спрятана внизу, что обеспечивает чистоту линий обзора. Я разработал один набор открытых стеллажей на острове, чтобы предложить небольшой стильный момент и имитировать отображение парящей настенной полки, которую я сделал на заказ в студии Walnut + Oak из Сиэтла. Черные столешницы на самом деле сделаны из кварца — Black Tempal производства Caesarstone, — но они выглядят и ощущаются так же, как мыльный камень — один из моих самых любимых материалов. Я действительно мог бы сидеть и смотреть на эту кухню весь день, я так ее люблю. Я так надеюсь, что вы тоже.
Столовая
Обеденный стол (аналогичный) | Белый стул | коричневые стулья | Табурет | Бра | Искусство | Ваза
Прежде чем вы спросите, почему на кухонном острове нет барной стойки, это был вполне осознанный выбор. Я решил сосредоточиться на хранении в кухонной зоне, а не на сидениях, потому что обеденный стол находится прямо рядом с ней! Когда я убрал прачечную, я открыл прекрасную длинную глухую стену, в которой теперь находится столовая.
Опять же — я мог бы добавить больше посадочных мест на кухне, если бы семья жила в этом доме постоянно, но в качестве места для отдыха приятно сесть за стол, чтобы насладиться едой — так как вам некуда спешить. ! Я разграничила обеденное пространство потрясающим бра от Allied Maker и не менее удивительным произведением искусства, которое я давно хотела от канадской художницы Анны Черч.
Спальни до
Теперь давайте перейдем к спальням! К счастью, этим пространствам просто требовались свежие слои краски и хорошо подобранная мебель, чтобы создать ту возвышенную скандинавскую атмосферу, к которой я стремился. Я хотел, чтобы каждая комната вызывала ощущение умиротворяющей безмятежности. Для этого я спроектировал главную спальню, сочетая натуральные материалы и текстуры в дополняющих друг друга оттенках. Подумайте о прекрасном шерстяном коврике от Nordic Knots, льняном постельном белье от Rough Linen, бумажном фонаре Noghuci и мраморных и каменных тумбочках от Hay Design и Norm Architects, которые прекрасно сочетаются друг с другом.
Я обратился в Seattle Art Source за великолепной картиной Дженнифер Готье над кроватью на платформе Rove Concepts.
Основная спальня
Кровать | Постельное белье | Ковер | Приставной столик (слева) | Боковой столик 2 (справа) | Бра | Подвесной светильник
Гардероб на заказ
Что приятно в работе с загородным домом, так это наличие встроенных систем хранения! В исторических домах этого не так много. В главной спальне была гардеробная, но я хотел убедиться, что полностью оптимизировал пространство, поэтому я работал с California Closets, чтобы спроектировать идеальное место для хранения всего вашего снаряжения для выходных. Я, например, люблю сразу же распаковывать вещи и чувствовать себя как дома каждый раз, когда я где-то остаюсь — и этот шкаф определенно гарантирует, что вы сможете это сделать. Там достаточно места, чтобы спрятать чемоданы, и я даже могу запереть ящики, если хочу сохранить некоторые из наших собственных вещей в тайне.
Комната для гостей
Кровать | Прикроватный светильник
Credenza Custom | Лампа
Стул Roly Poly | кашемировый плед | Ковер
По иронии судьбы, я избавился от шкафа во второй спальне коттеджа.
Комната была уже совсем маленькая. Установка кровати размера «queen-size» заставит ее чувствовать себя очень тесно, поэтому я решил продемонстрировать встроенный шкаф и спроектировать специальный комод, чтобы сидеть на его месте. Дизайнерская мастерская Walnut+Oak из Сиэтла идеально воплотила мое видение — она придала комнате веселую индивидуальность, а гостям — достаточно места для хранения вещей. Еще один ковер Nordic Knots, на этот раз с ярким клетчатым рисунком, и давно желанное кресло Faye Toogood Roly Poly добавляют забавное противоречие между современными и более традиционными предметами. До сих пор у меня не было ничего, кроме восторженных отзывов от наших гостей об этой комнате.
Теперь поговорим о туалетах. Ванные комнаты могут быть такими же сложными в дизайне, как и кухня. Столько возможностей – столько возможностей! Единственный выбор, который у меня был с ванными в этом доме, — это начать все сначала.
Ванные комнаты до
Главная ванная оказалась большой игрой в тетрис.
Его существующая компоновка крошечной ванны, крошечной душевой кабины из стекловолокна и странных шкафчиков посередине, конечно, не могла остаться. Но оказалось, что каминная решетка из гостиной на самом деле находилась в главной ванной комнате — хотелось бы только знать почему — так что мне пришлось придумать, как это обойти.
Плитка
И вот что получилось! Я создал удлиненный двойной душ, полностью облицованный великолепной плиткой ручной работы от Clé. Теперь вы можете наслаждаться потрясающим видом из окна, выходящего на запад, пока вы намыливаетесь. На противоположной стене стоит парящий туалетный столик из белого дуба — круглое зеркало, отражающее виды на вас, пока вы чистите зубы. Я использовал бетонную шестигранную плитку также от Clé на бесшовном полу. Что касается погони за камином? Я попросил своего подрядчика заключить нижнюю половину и поставить столешницу Caesarstone сверху, чтобы она служила еще одной поверхностью для хранения. Небольшие простые плавающие полки создают место для демонстрации некоторых прелестей.
Плитка | Земные огни | Зеркало | Art
В гостевой ванне я применил несколько иной подход. Здесь схема осталась точно такой же. Это было такое маленькое пространство, что не было никакого смысла пытаться что-то поменять. Вместо этого я просто значительно обновил все поверхности и полностью отказался от атмосферы основной ванной комнаты.
Так как гостевая ванна уже была маленькой и без окон, я хотел, чтобы дизайн выглядел по-настоящему драматичным и смелым. Для достижения этой цели я придерживался очень графичной черно-белой цветовой палитры. Темная плитка zellige от Clé покрывает пол и поднимается вверх по стене, чтобы скрыть существующий выступ. Уложенные друг на друга плитки из цементного кирпича от Clé поднимаются по стенам душевой кабины, чтобы сделать ее немного выше. Стандартная стеклянная перегородка от Ferguson стала бюджетным решением для душа. Чтобы смягчить все углы и сильные линии в этом маленьком пространстве, я выбрал действительно забавную отдельно стоящую цилиндрическую раковину, овальное зеркало и два круглых светильника от Flos.
Ванна в холле может быть маленькой, но она дает мощный удар по стилю.
А теперь займемся детскими уголками!
Детское пространство до
Книжная полка | Обои | подвесной светильник | Ковер
Я превратил третью спальню коттеджа в рай для малышей. Как мать семилетнего сына, я, конечно же, проектировала эту комнату, думая о нем, но также думая обо всех моих друзьях, у которых есть младшие дети. Простая двухъярусная кровать из сосны (которую я, возможно, когда-нибудь еще покрашу. Насчет этого пока не знаю) позволяет ночевать или братьям и сестрам спать вместе, а на полке мини-библиотеки из моей любимой линии детской мебели Oeuf NYC выставлены книги и отборные игрушки. Индивидуальные (съемные!) обои с картой мира украшают всю заднюю стену комнаты, создавая возможности для увлекательных историй перед сном. Уютный плетеный коврик от Armadillo смягчает пол. Мой сын вбегает в эту комнату с самым большим на лице, и я искренне надеюсь, что другие дети тоже.
Вы можете подумать, что наше путешествие подошло к концу, но у меня есть для вас сюрприз.
Хотя я называю этот дом коттеджем, это прозвище больше связано с ощущением дома, чем с его фактическими квадратными метрами. Оказалось, что в доме был весь освещенный дневным светом подвал с множеством (иногда случайных!) пространств, которые я намеревался максимально увеличить, создав большую комнату, игровое пространство, домашний офис / четвертую спальню и пару случайных пространств, которые я нашел несколько довольно забавных применений для — так что давайте спустимся вниз!
Семейная комната До
Раньше я никогда не жил в доме с большой комнатой или семейным уголком, поэтому мне не терпелось создать уютную маленькую гавань для вечеров кино и семейных тусовок. Это определенно не то, с чего все началось.
Секционный | османы | Медиахранилище | Ковер | Лампа
Скамейка | Стул | Искусство | Зеркало
К счастью, после небольшой чистки и полировки у меня теперь есть убежище от беспокойного мира, которое я искал. Чтобы достичь этого, я обратился к другим моим любимым источникам, в том числе к скандинавским дизайнерам, таким как ковры Skagerak и Nordic Knots, а также к одному из моих любимых американских производителей мебели, Room & Board.
Изогнутая секция, обтянутая пупырчатой кремовой букле от Room & Board, предлагает идеальное место, чтобы уютно устроиться перед телевизором. Мой сын тоже любит прыгать на одинаковых пуфиках. Медиа-консоль на самом деле представляет собой серию из трех медиа-шкафов Keaton из ясеня, которые я установил встык вдоль стены, чтобы отразить софит наверху. У него есть дополнительный бонус, заключающийся в том, что он предлагает достаточно места для хранения игр, аудио-видео оборудования и даже нашего проигрывателя и небольшой коллекции виниловых пластинок. Большая комната согревается до особого уюта газовой плитой Regency Contura в углу, где также есть скамья для резки Skagerak и оригинальная гравюра Скай Шухман. Я с нетерпением жду момента, когда смогу посидеть в этой комнате после того, как уложу сына спать каждый вечер.
Стол | Книжный шкаф | Офисный стул | Ковер | Арт.
На цокольном этаже есть специальные места для детей и взрослых. Поскольку в наши дни так много людей могут работать откуда угодно, я превратил четвертую спальню в специальный домашний офис с раскладным диваном, чтобы разместить дополнительных гостей на ночь.
Однако стол выходит окнами на набережную, поэтому я не могу обещать, что вы будете особенно продуктивны.
Стеллаж | Хранение игрушек | Гирлянда | Ковер | Подвеска
На противоположной стороне подвала была странная ниша комнаты без дверей, которую я решил превратить в специальное игровое пространство. Я сразу понял, что мне нужны настенные полки для хранения вещей в этой комнате, так как общеизвестно, что дети играют только с вещами, которые видят. Я был настроен на определенный набор полок от Ikea, но в разгар проблем с цепочкой поставок из-за пандемии их не было в наличии, и они никогда не возвращались. К счастью, я обнаружил еще одну замечательную скандинавскую дизайнерскую студию, Moebe CPH, базирующуюся в Копенгагене, после того, как они связались со мной в Instagram. Их система настенных полок была именно тем, что я искал. Я очень доволен тем, какой получилась эта стена. Дети могут брать с полок головоломки, кубики и старинные игры. На противоположной стороне комнаты я использовал магазин игрушек Oeuf NYC, чтобы хранить лего, мраморные дорожки, музыкальные инструменты и другие забавные мелочи, в которых могли легко разобраться дети всех возрастов и уровней, в то время как мольберт и художественная станция создает выделенную зону для творчества.
Еще один плетеный ковер Armadillo создает идеальное мягкое место, где можно посидеть и поиграть дождливым днем.
Обои | Шкаф для хранения (больше не доступен) | Розетки | Деревянные колышки
Но не думайте, что я позволяю детям веселиться! Было еще одно, немного странное, довольно маленькое помещение в подвале, которое было забито от пола до потолка хламом, когда мы впервые завладели им. Но как заядлый йог и новоявленный энтузиаст Peloton, я сразу же увидел возможность выделить место, посвященное оздоровлению. Я работал с York Wallcoverings, чтобы окутать всю комнату великолепной травяной тканью. Я поставил свою оду всем вещам «ву-ву» в одном углу, а также запасся более традиционным оборудованием для фитнеса. Должен вам сказать, иметь комнату в собственном доме, где вы можете закрыть дверь и потренироваться, кажется восхитительным. После более чем года занятий Zoom-йогой посреди гостиной мне нравится иметь это особое пространство.
Фух. Ну вот и все. Технически она не может быть настоящим коттеджем, но коттедж Худ-Канал, безусловно, является особым маленьким побегом.


Тут есть нюансы, которые даже не знают некоторые опытные дизайнеры.
Тот же принцип следует применить при заказах через интернет. Стол, шкаф или кровать могут отлично смотреться на снимках, но впишутся ли они в ограниченной пространство маленькой квартиры 34 кв. м, это вопрос.
Важно не переборщить при сочетании цветов, фактур и формы предметов. Иначе может получиться неприглядная картина, а хозяин жилья заработает не лестную репутацию. Да и самим находиться в помещение, где хаотично расставлены аксессуары и предметы, абсолютно не подходящие друг к другу, будет не очень приятно.
Приобрести или заказать шкаф-купе. Разнообразный дизайн и конструкции этого предмета мебели крайне популярны сегодня, поскольку нет необходимости оставлять мертвые зоны для открывания традиционных дверей.